- Blockbohlen aus 70 mm nordischer Fichte ohne Ecküberstand mit Gewindestangen
- Flachdach mit Dachbahn, Dachschalung aus 18 mm Holzdielen und Giebelblende aus Holz
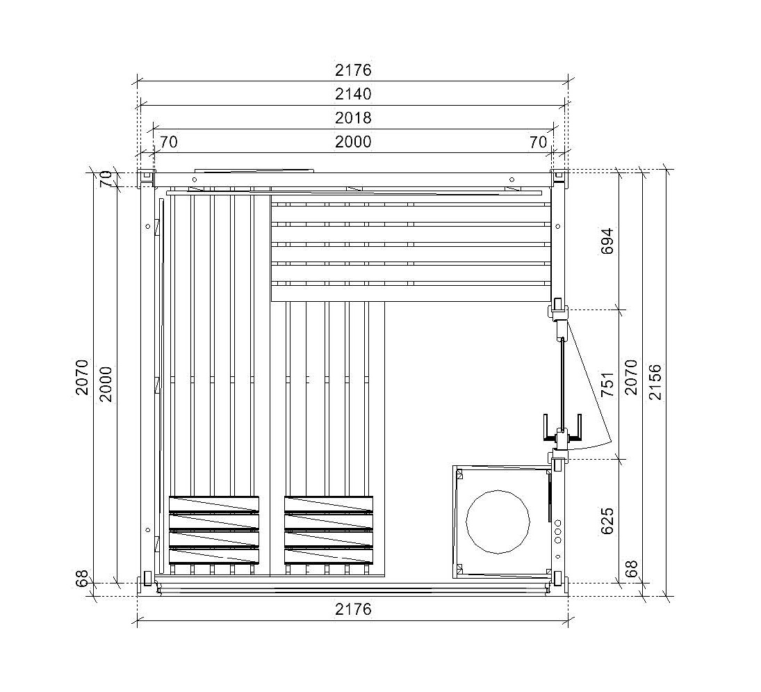
- Inneneinrichtung Norma in hochwertiger Espe oder Linde
- 2 Rückenlehnen, 2 Kopfstützen, Lüftungsschieber mit Insektengitter
- Zwischenbankverkleidung, Ofenschutzgitter und Fußrost
- Flachdach mit Dachbahn, Dachschalung aus 18 mm Holzdielen und Giebelblende aus Holz
- Inneneinrichtung Norma in hochwertiger Espe oder Linde
- 2 Rückenlehnen, 2 Kopfstützen, Lüftungsschieber mit Insektengitter
- Zwischenbankverkleidung, Ofenschutzgitter und Fußrost
10.990,00 €*
% 12.197,00 €* (9.9% gespart)Sofort verfügbar, Lieferzeit: ca. 30 Tage
Speditionslieferung
Produktnummer:
000653900000